株式会社トラスト TRUST produce human communication
私たち株式会社トラストは、お客様が抱える様々な問題を解消するため海水処理濾過装置をはじめとし、各種水処理装置をご用意いたしております。

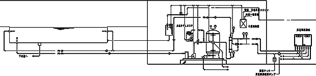
■プール・浴槽用循環ろ過装置
プール・浴槽用濾過装置は、厚生労働省の各条例以上の水質を目指し 濾過,昇温,殺菌装置を合理的に選定し、安全・安心な水質を提供できるシステムを提案しています。 又、殺菌装置も従来からの次亜塩素酸ナトリウム注入方式だけでなく、 オゾン,紫外線による高度殺菌装置も提案しています。

![]()
| ● | プール、浴槽の浄化・昇温・殺菌 |
|---|
![]()
| ● | 公共プール、スポーツクラブなどの循環設備 |
|---|---|
| ● | 日帰り温泉施設、ホテル、旅館などの循環設備 |
![]()
![]()
| ● | 全自動式ですので装置の日常操作が不要です。 |
|---|---|
| ● | 維持管理は薬品の補充と水質管理のみです。 |
![]()
| ● | ろ過タンクはFRP製と丈夫な鋼板に腐食処理をしたタイプが有り、耐久性に優れています。 |
|---|---|
| ● | ろ過材は逆洗による洗浄で長期間、寿命を保ちます。(ただしろ過材の補充は必要) |
![]()
